+17

Oude Benderseweg 11-508 7963 PX Ruinen € 250.000,- k.k.

  • Woonhuis
  • 4 kamers
  • 3 slaapkamers
  • 1 badkamers
  • Bouwjaar 2023
  • 596 m² perceeloppervlakte
  • 66 m² gebruiksoppervlakte
  • Gestoffeerd

Beschrijving

Luxe Vrijstaande Woning in het Hart van Ruinen

Ontdek deze prachtige en instapklare vrijstaande woning, gelegen in het pittoreske Ruinen. Met zijn moderne architectuur en talloze faciliteiten is dit de ideale woning voor zowel gezinnen, koppels als ouderen. Met een zeer royaal perceel en een tuin rondom het pand, kunt u genieten van ruimte en de rustige omgeving. Deze kavel ligt vrijwel afgelegen en biedt daarom veel privacy. Daarnaast is de woning gemakkelijk te bereiken daar het perceel beschikt over een eigen parkeerplaats.

Bij binnenkomst in de woning wordt u verwelkomd door een ruime en lichte woonkamer, voorzien van grote raampartijen die voor veel natuurlijk licht zorgen. Geniet van gezellige avonden in de comfortabele zithoek met een televisie voor entertainment. De open keuken is zeer netjes afgewerkt met een antraciet kleurige achterwand en voorziet in meer dan genoeg werk- en bergruimte. Volledig uitgerust met oven, koelkast, geïntegreerde inductieplaat en vaatwasser is deze open keuken niet alleen stijlvol, maar ook zeer praktisch.

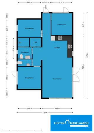
De Cube 508 beschikt over in totaal 3 slaapkamers, waarmee het geschikt is voor maximaal 6 personen. Twee slaapkamers zijn voorzien van comfortabele tweepersoonsbedden, terwijl de derde slaapkamer is uitgerust met 2 eenpersoonsbedden. Alle slaapvertrekken zijn praktisch ingedeeld en beschikken over veel kastruimte. De moderne badkamer biedt een toilet, breed wastafelmeubel en een ruime douche met glazen deur. Naast de badkamer vindt u nog een separaat toilet voor extra comfort en gemak.

Via de woonkamer heeft u rechtstreeks toegang tot de prachtige tuin rondom de royale woning. Deze groene omgeving biedt de perfecte setting om te ontspannen en te genieten van de buitenlucht. Neem plaats op het betegelde terras en geniet van het uitzicht op uw eigen stukje natuur.

Deze unieke woning is niet alleen prachtig, maar ook duurzaam. Het is uitgerust met een warmtepomp die het warmte- koelsysteem aanstuurt. Hierdoor kunt u het gehele jaar zeer comfortabel verblijven. En dit zorgt niet alleen voor lagere energiekosten, maar draagt ook bij aan een duurzamere toekomst.

Bij het kopen van deze recreatiewoning voor eigen gebruik, kunt u er ook voor kiezen deze gedeeltelijk of volledig te verhuren. De woning beschikt over een volledig en luxe inventaris en is dan ook instapklaar!
Wanneer u kiest voor het (gedeeltelijk) verhuren van de woning, kunt u dit proces geheel uit handen geven! Het verhuren gebeurt middels een professionele verhuurorganisatie. Zo kunt u de kosten minimaliseren en daarnaast zelf ook onbezorgd van uw vakantiehuis genieten!

Wacht niet langer en maak vandaag nog een afspraak om deze prachtige vrijstaande woning te bezichtigen. Ontdek de luxe, het comfort en de rust die dit pand te bieden heeft. Dit is uw kans om te genieten van al het moois dat Ruinen te bieden heeft!

Kenmerken:

Woonoppervlakte: 66 m2
Perceelgrootte: 596 m2
Bouwjaar: 2023
Personen: 6
Bijzonderheden: Warmtepomp, ruim perceel, vrijwel nieuwe woning.
Inclusief: perceel en inventaris.

Over EuroParcs Ruinen...

Op EuroParcs Ruinen in de provincie Drenthe komen rustgevende natuur en origineel overnachten samen. Het ruim opgezette vakantiepark heeft een wel heel unieke ligging dichtbij drie Drentse nationale parken, met Nationaal Park Dwingelderveld in de achtertuin. Natuurliefhebbers, maar ook gezinnen komen volledig tot rust met de prachtige natuuromgeving en de luxe faciliteiten van het park.

Voor wie op zoek is naar een rustgevende natuur- of kampeervakantie in Nederland, hoeft niet verder te zoeken. Een echt pluspunt bij EuroParcs Ruinen is de mogelijkheid tot WinterGlamping. Vanaf het park kun je ook uitdagende mountainbiketochten en schitterende fiets- en wandelroutes ondernemen. In een kwartier fiets je naar het hart van Nationaal Park Dwingelderveld, het grootste natte heidegebied van Europa. Natuurliefhebbers zijn hier helemaal in hun nopjes met de bijzondere flora en fauna die hier te ontdekken zijn. Verken het natuurgebied op eigen houtje of samen met de boswachter. Zeker tijdens de lammetjestijd is een wandeling naar de schaapskudde vanaf het park een aanrader.

Kaart

Kenmerken

Overdracht

Referentienummer
95
Vraagprijs
€ 250.000,- k.k.
Inrichting
Ja
Inrichting
Gestoffeerd
Aanvaarding
In overleg
Aangeboden sinds
Donderdag 27 juli 2023
Laatste wijziging
Dinsdag 17 juni 2025

Bouw

Type object
Woonhuis, bungalow, vrijstaande woning
Soort bouw
Bestaande bouw
Bouwperiode
2023

Oppervlaktes en inhoud

Perceeloppervlakte
596 m²
Woonoppervlakte
66 m²
Inhoud
240 m³

Indeling

Aantal bouwlagen
1
Aantal kamers
4 (waarvan 3 slaapkamers)
Aantal badkamers
1

Locatie

Ligging
In bosrijke omgeving
Open ligging
Platteland

Tuin

Type
Tuin rondom

Uitrusting

Aantal parkeerplaatsen
1
Verwarmingssysteem
Warmtepomp
Tuin aanwezig
Ja

Kadastrale gegevens

Kadastrale aanduiding
Ruinen L 1050
Perceeloppervlakte
596 m²
Eigendomsituatie
Eigen grond

Media

Video

Plattegronden

zoekopdracht
Loop je droomwoning niet mis

Schrijf je in en ontvang het nieuwste aanbod in de mail

Gratis zoekopdracht