Beschrijving
Geniet van luxe wellness in deze prachtige 'Villa Deluxe 114'.
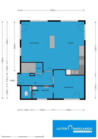
Welkom bij deze prachtige vakantievilla die het ultieme gevoel van ontspanning en vakantie uitstraalt. Vanaf het moment dat u de woning binnenstapt, zult u meteen het ruime en sfeervolle gevoel ervaren. De indeling van de woning is ruim en de sfeervolle openhaard zorgt voor een warme en gezellige sfeer. Ingericht met stijlvol meubilair en maar liefst 3 airco's, is het verblijf in deze villa altijd comfortabel.
De riante open keuken is afgewerkt met een houtlook en biedt veel werk- en bergruimte. Voorzien van hoogwaardige inbouwapparatuur en afgewerkt met een halfhoge achterwand is deze keuken zowel een genot in gebruik als voor het oog.
Villa Deluxe 114 biedt plaats aan 12 personen, verdeeld over 6 kamers. Bovendien beschikt de woning over 3 badkamers, waardoor er genoeg ruimte is voor iedereen om zich klaar te maken voor een ontspannen dag.
Geniet van de luxe wellnessfaciliteiten, waaronder een jacuzzi, buitendouche en sauna. Het ruime grasveld en het tegelterras met overkapping bieden genoeg mogelijkheden om te ontspannen en te genieten van de buitenlucht.
Kenmerken:
- Woonoppervlakte:
- Aantal kamers: 7
- Aantal slaapkamers: 6
- Bouwjaar: 2020
- Perceelgrootte: 503 m2
- Inclusief koopkavel
- Inclusief tuinaanleg
- Inclusief inventaris
- Bijzonderheden: sauna, jacuzzi, buitendouche en 3 airco's
Résidence Lichtenvoorde
Rust, ontspanning en plezier in de veelzijdige Achterhoek
Résidence Lichtenvoorde is een kleinschalig, luxe vakantiepark in de Achterhoek. De uitstraling van het vakantiepark is, net als de omgeving, rustgevend en uitnodigend. De omgeving en de faciliteiten op het vakantiepark staan garant aan een fijne vakantie, voor jong én oud. Het vakantiepark is gelegen in Lichtenvoorde en is omgeven door een prachtig coulisselandschap bestaande uit uitgestrekte weilanden, bossen en slingerende wegen. Breng tijdens uw verblijf een bezoek aan een van de historische kastelen in de omgeving, maak de mooiste fiets- en wandeltochten en ontdek de vele faciliteiten op het vakantiepark in Lichtenvoorde.
- Diverse visvijvers op het park
- Binnen- en buitenzwembad
- Bowlingbanen
- Gezellig restaurant
- Nabij de Duitse grens
Zelf ervaren hoe leuk een vakantie op ons vakantiepark in de Achterhoek is? Met een eigen vakantiewoning kunt u eindeloos genieten!
Bij het kopen van een Villa Deluxe voor eigen gebruik kunt u er ook voor kiezen deze gedeeltelijk te verhuren. Het verhuren gebeurt middels een professionele verhuurorganisatie. U houdt hier een mooie verhuuropbrengst aan over, waardoor u de kosten kunt minimaliseren en daarnaast zelf ook onbezorgd van uw vakantiehuis kunt genieten!
Bent u benieuwd naar deze vakantiewoning? Kom dan vrijblijvend een kijkje nemen!