+23

Akkerweg 41-028 1779 GJ Den Oever € 192.000,- k.k.

  • Woonhuis
  • 4 kamers
  • 3 slaapkamers
  • 1 badkamers
  • Bouwjaar 2024
  • 295 m² perceeloppervlakte
  • 46 m² gebruiksoppervlakte
  • Gemeubileerd

Beschrijving

Kavel 28 op Recreatiepark de Wierde – Comfort, ruimte en uitzicht over het groen

Op zoek naar een comfortabele recreatiewoning met verrassend veel ruimte en een vrij uitzicht over de weilanden? Dan is deze charmante chaletwoning op kavel 28 precies wat u zoekt. Deze woning is geschikt voor maximaal zes personen en combineert praktische indeling met slimme details en een rustige ligging op het park.

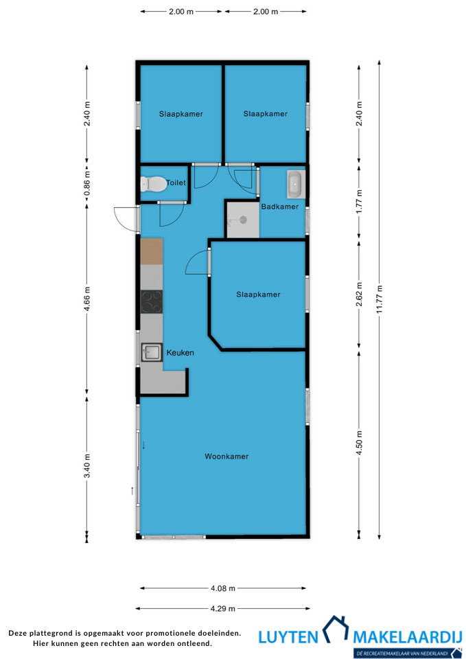
De indeling is perfect voor gezinnen of groepen: er is één ruime master bedroom met een tweepersoonsbed en twee aparte slaapkamers, elk met twee losse bedden. Ideaal voor kinderen, familie of logees. De woning beschikt daarnaast over een moderne badkamer met douche en wastafel, en een apart toilet.

De keuken is een opvallend pluspunt: netjes afgewerkt en voorzien van diverse inbouwapparatuur zoals een vaatwasser, koelkast en combimagnetron. Een extra hoekje met werkblad biedt nét dat beetje meer gemak en werkruimte – ideaal voor de kookliefhebber.

Buiten vindt u twee fijne terrassen, waardoor er altijd wel een plekje in de zon of schaduw te vinden is. Vanaf beide terrassen kijkt u uit over het omliggende weiland – een heerlijke plek om te ontspannen, eten of borrelen in alle rust.

Een ander sterk punt is de grote, vrijstaande berging. Deze is voorzien van stroom én water, wat veel extra mogelijkheden biedt voor opslag, hobby’s of bijvoorbeeld het plaatsen van een extra koelkast of wasmachine.

Of u nu op zoek bent naar een eigen plek om tot rust te komen of een solide investering met verhuurmogelijkheden, deze woning op kavel 28 biedt het allebei.

Perceelgrootte: 295 m²
Woonoppervlakte: 46 m²
Aantal personen: 6
Inclusief: grond en inventaris
Bijzonderheden: Vrij uitzicht over weiland, grote losstaande berging

Over Recreatiepark de Wierde

Chaletpark de Wierde, het best bewaarde geheim van Noord-Nederland, ligt op het voormalig eiland Wieringen, aan de kop van de Afsluitdijk en direct aan de internationaal beschermde Wierdijk. Het park is omringd door water en ligt op loopafstand van het Robbenoordbos en het IJsselmeer, met een kindvriendelijk strand. In 10 minuten lopen bent u in het charmante vissersplaatsje Den Oever.

Op het voormalig eiland Wieringen vindt u prachtige wandel- en fietsroutes. Wieringen is een waar paradijs voor zeilers, sportvissers en surfers. Van hieruit is het schoonste Noordzeestrand, met de plaatsjes Groot Keeten en Callantsoog, snel en zonder files bereikbaar. Wieringen is een voormalig waddeneiland; zo staat u met 20 minuten op de boot naar Texel! Het grootste aaneengesloten bollengebied van Europa ligt op 5 minuten afstand. Wieringen laat je niet snel meer los met z'n zilte lucht en rust. Durf het te ervaren!

Kaart

Kenmerken

Overdracht

Referentienummer
333
Vraagprijs
€ 192.000,- k.k.
Inrichting
Ja
Inrichting
Gemeubileerd
Aanvaarding
In overleg
Aangeboden sinds
Donderdag 8 mei 2025
Laatste wijziging
Dinsdag 17 juni 2025

Bouw

Type object
Woonhuis, bungalow, vrijstaande woning
Soort bouw
Bestaande bouw
Bouwperiode
2024

Oppervlaktes en inhoud

Perceeloppervlakte
295 m²
Woonoppervlakte
46 m²
Inhoud
115 m³

Indeling

Aantal bouwlagen
1
Aantal kamers
4 (waarvan 3 slaapkamers)
Aantal badkamers
1 (en 1 apart toilet)

Locatie

Ligging
Afgelegen
Beschutte ligging
Vrij uitzicht

Tuin

Type
Tuin rondom
Staat
Prachtig aangelegd

Uitrusting

Aantal parkeerplaatsen
1
Badkamervoorzieningen
Douche
Wastafelmeubel
Tuin aanwezig
Ja
Heeft schuur/berging
Ja

Kadastrale gegevens

Kadastrale aanduiding
Hollands Kroon G 1215
Perceeloppervlakte
295 m²
Omvang
Geheel perceel
Eigendomsituatie
Eigen grond

Media

Video

Plattegronden

zoekopdracht
Loop je droomwoning niet mis

Schrijf je in en ontvang het nieuwste aanbod in de mail

Gratis zoekopdracht