Nieuw in verkoop:Lijsbeth Tijsweg, 1647 LE Berkhout - Foto
Nieuw in verkoop
+16

Lijsbeth Tijsweg 1647 LE Berkhout € 60.000,- v.o.n.

  • Woonhuis
  • 4 kamers
  • 3 slaapkamers
  • 1 badkamer
  • Bouwjaar 2018
  • 300 m² perceeloppervlakte
  • 48 m² gebruiksoppervlakte
  • Gemeubileerd

Beschrijving

Welkom bij Casa di Rialto 73!

Let op:
Deze vakantiewoning staat momenteel op huurgrond.
Bij aankoop bent u verplicht de kavel van de parkorganisatie aan te kopen voor € 80.000 k.k.
De huidige huurconstructie is niet meer mogelijk voor nieuwe eigenaren. U wordt dus eigenaar van zowel de woning als de grond.

Welkom!

Op een prachtige locatie binnen TopParken Westerkogge staat deze moderne vakantiewoning op een royaal perceel van circa 300 m², met vrij uitzicht, een strak terras en een eigen parkeerplaats. De woning is geschikt voor 6 personen en perfect voor eigen gebruik én verhuur. De afwerking is verzorgd, de inrichting eigentijds en dankzij de grote raampartijen geniet u van veel daglicht.

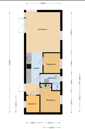
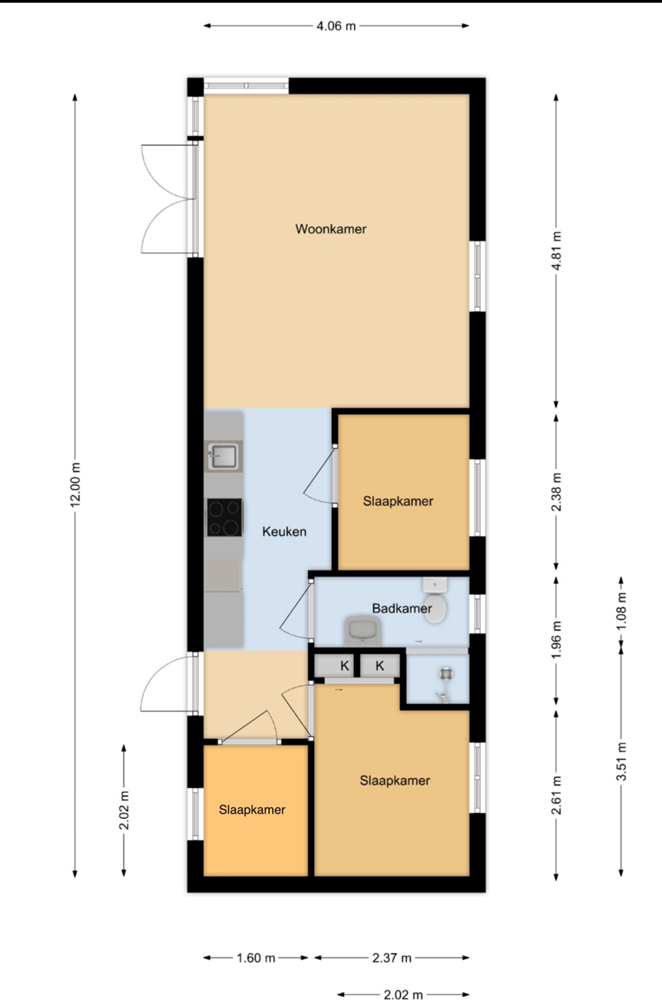
De lichte woonkamer met hoge nok en openslaande deuren naar het terras vormt het hart van de woning. De open keuken is modern uitgevoerd en voorzien van inbouwapparatuur, waaronder een combimagnetron, vaatwasser en voldoende bergruimte. Verder beschikt de woning over drie slaapkamers (6 slaapplaatsen) en een nette badkamer met douche, wastafelmeubel en toilet.

Via TopParken kunt u de verhuur volledig laten verzorgen, de woning zelf privé gebruiken of kiezen voor een combinatie hiervan. Zo is er voor ieder wat wils!

Kenmerken
- Perceel: ca. 300 m²
- Woonoppervlakte: 48 m²
- 6-persoons woning
- Inclusief inventaris
- Eigen parkeerplaats bij de vakantiewoning

Park Westerkogge

Gelegen in het Noord-Hollandse landschap, vlak bij Hoorn en het Markermeer, vindt u dit waterrijke park. Via een schilderachtige oprijlaan bereikt u de rustige ligging van Westerkogge. De omgeving leent zich uitstekend voor fietsen, varen of een dagje Amsterdam. Hier komt u écht tot rust.

Nieuwsgierig geworden?
Wij vertellen u graag meer en laten u deze woning met eigen ogen ervaren. Neem gerust contact op voor een vrijblijvende bezichtiging.

Kaart

Kenmerken

Overdracht

Referentienummer
415
Vraagprijs
€ 60.000,- v.o.n.
Inrichting
Ja
Inrichting
Gemeubileerd
Status
Nieuw in verkoop
Aanvaarding
In overleg
Aangeboden sinds
Donderdag 9 april 2026

Bouw

Type object
Woonhuis, bungalow, vrijstaande woning
Soort bouw
Bestaande bouw
Bouwperiode
2018

Oppervlaktes en inhoud

Perceeloppervlakte
300 m²
Woonoppervlakte
48 m²
Inhoud
250 m³

Indeling

Aantal bouwlagen
1
Aantal kamers
4 (waarvan 3 slaapkamers)
Aantal badkamers
1

Locatie

Ligging
Aan park

Tuin

Type
Tuin rondom

Uitrusting

Aantal parkeerplaatsen
1
Badkamervoorzieningen
Douche
Toilet
Wastafel
Tuin aanwezig
Ja
Beschikt over een internetverbinding
Ja

Kadastrale gegevens

Kadastrale aanduiding
Wester-Koggenland AC 733
Perceeloppervlakte
300 m²
Omvang
Deel perceel
Eigendomsituatie
Zie akte

Media

Plattegronden

zoekopdracht
Loop je droomwoning niet mis

Schrijf je in en ontvang het nieuwste aanbod in de mail

Gratis zoekopdracht